Plans & Specs
FLOOR PLAN OPTIONS
Click on any of the below floor plan images to download a printable full-page version.
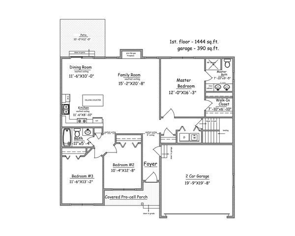
ADDISON - 1,444 SF
3 Bedroom
2 Full Bath
Vaulted Fireplaced Living Room
Vaulted Dining Room
Vaulted Kitchen with Island
Primary Bedroom Suite with Walk-in Closet & Double Sink Vanity
2-Car Attached Garage
Paver Brick Front Walk
10' x 12' Paver Brick Patio or Trex Deck on Walk-out Units
Covered Front Porch
Option to Add Vaulted 12' x 12' Three or Four-Season Sunroom
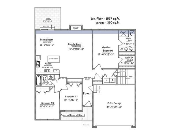
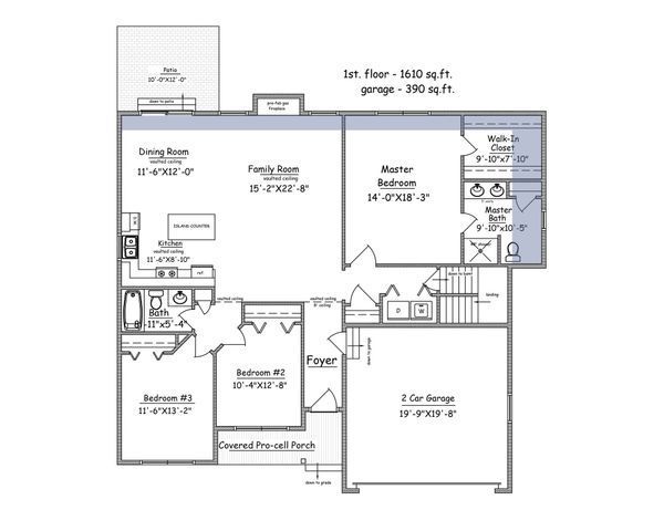
CHATHAM - 1,610 SF
Same as the Addison Plan
EXCEPT this plan is 2' larger in depth in the Living Room, Dining Room, Kitchen & Master Bedroom Suite (the Blantyre Plan) with an additional 4' in width in the Master Bedroom Suite adding extra square footage in the Master Bedroom and/or Walk-in closet and Master Bath - as shown in blue.
Standard Specs
Building Specs Included in the Price of Each Unit
Click On Any Item Below To Learn More
UTILITIES
● City Water, City Sewer
● Underground Utilities
FOUNDATION
● 10" Foundation Walls
● 10" x 25" Footings
STRUCTURAL
● Vaulted 11' Ceilings Living, Kitchen & Dining Area, 9' Remaining
● Exterior 2 x 6 x 16" on center
● Interior 2 x 4 x 16" on center
● Sub Floor 3/4" Tongue & Groove
● Exterior Roof Sheathing 1/2" CDX Plywood
● Exterior Wall Sheathing 7/16" OSB Board
SIDING
● Vinyl Clap Board Siding
● Vinyl and Aluminum Trim
● Corner Posts and Skirt Boards
● Aluminum Gutters and Leaders
● Shutters Located on the Front of the Unit
WINDOWS
● Wincore with Low E Glass
● Double Pane Insulated Argon Gas Filled
● Double Hung Tilt Windows
● Screens and Grills
ROOFING
● 30 Year Architectural Shingles
EXTERIOR
● Paved Driveway
● Paver Brick Walk to Front Door
● Site Landscaped to Approved Site Plan
● 10 x 12' Paver Brick Patio or 10 x 12' Trex Deck on Walk-out Units
INSULATION
● Barricade Housewrap
● 2nd Floor Ceiling R-49
● Exterior Walls R-21
● Basement Ceiling R-30
HEATING, VENTING, & AIR CONDITIONING
● 1 Zone Electric Heat Pump HVAC
● Dryer Venting to Outside
● Attic Scuttle
● Soffit and Ridge Vent
● 50 Gallon Electric Hot Water Heater
FIREPLACE
● Propane Free-Standing Fireplace with Marble Surround and Wood Mantel
PLUMBING
● Kitchen Sink, Double Bowl Stainless Undermount
● Fiberglass Base, Tiled Shower - Primary Bath
● 1/4" Semi-Frameless Primary Shower Door
● One Piece Fiberglass Tub and Shower - Main Bath
● Faucets - Delta or Equal
● Toilets - Elongated Toto
● 2 Exterior Faucets Provided
● Washer & Dryer Hookup
● Plumbing Supply Line: Copper/Pex
● Drain Lines: ABS
ELECTRICAL
● 200 Amp Service
● 2 Exterior Plugs
● 1/3 HP WIFI Garage Door Opener
● Smoke Detectors Provided Per Code
● 1 Phone Jack, 4 Cable Jacks
● Fan Lights located in all Baths
● 3 LED Recess Lights
APPLIANCES
● Dishwasher by GE Stainless Steel
● Range Electric Self-Cleaning by GE Stainless Steel
● Microwave by GE Stainless Steel
● Refrigerator by GE Stainless Steel
FLOORING
● 3-1/4" Oak Flooring in Foyer, Kitchen, Dining Room, Family Room, and Hallways
● Wall to Wall Carpeting in Bedrooms
● Tile located in Baths
INTERIOR FINISHES
● 6 Panel Style Interior Doors (Masonite)
● 5-1/4" Neck Baseboard Colonial Type
● 2-1/2" Pine Cased Openings Colonial Type
● Ceilings Sprayed Flat White
● Walls Painted 2 Coats Latex Flat: Color TBD
● Trim Painted 2 Coats Latex Semi-Gloss: White
● Moisture Resistant Sheetrock around Tubs
CABINETS
● Custom Made Raised Panel Cabinets & Vanities
● Granite Counter Tops in Kitchen and Baths with 4" Backsplash










